Luxusní apartmán na Brači
- klimatizace, podlahové topení
- elektřina, voda, kanalizace
- upravená zahrada, letní kuchyň
- sauna
Tento jedinečný apartmán se nachází v malebné vesnici Murvica, na jednom z nejkrásnějších chorvatských ostrovů, na ostrově Brač.
Apatmán je součástí objektu s 9 samostatnými apartmánovými jednotkami, jejichž rekonstrukce byla provedena s důrazem na funkčnost, estetiku a dlouhodobou hodnotu. Jedná se o starý kamenný dům, který byl kompletně a kvalitně zrekonstruován v roce 2023, s ohledem na zachování původních architektonických detailů s použitím vysoce kvalitních materiálů.
Nemovitost je obklopena nedotčenou přírodou, nabízí dechberoucí výhled na moře, azurový horizont a jednu z nejkrásnějších pláží na ostrově. Poskytuje naprostý klid a soukromí, je vzdálen pouhé 3 km od malebného Bolu a světově proslulé pláže Zlatni rat.
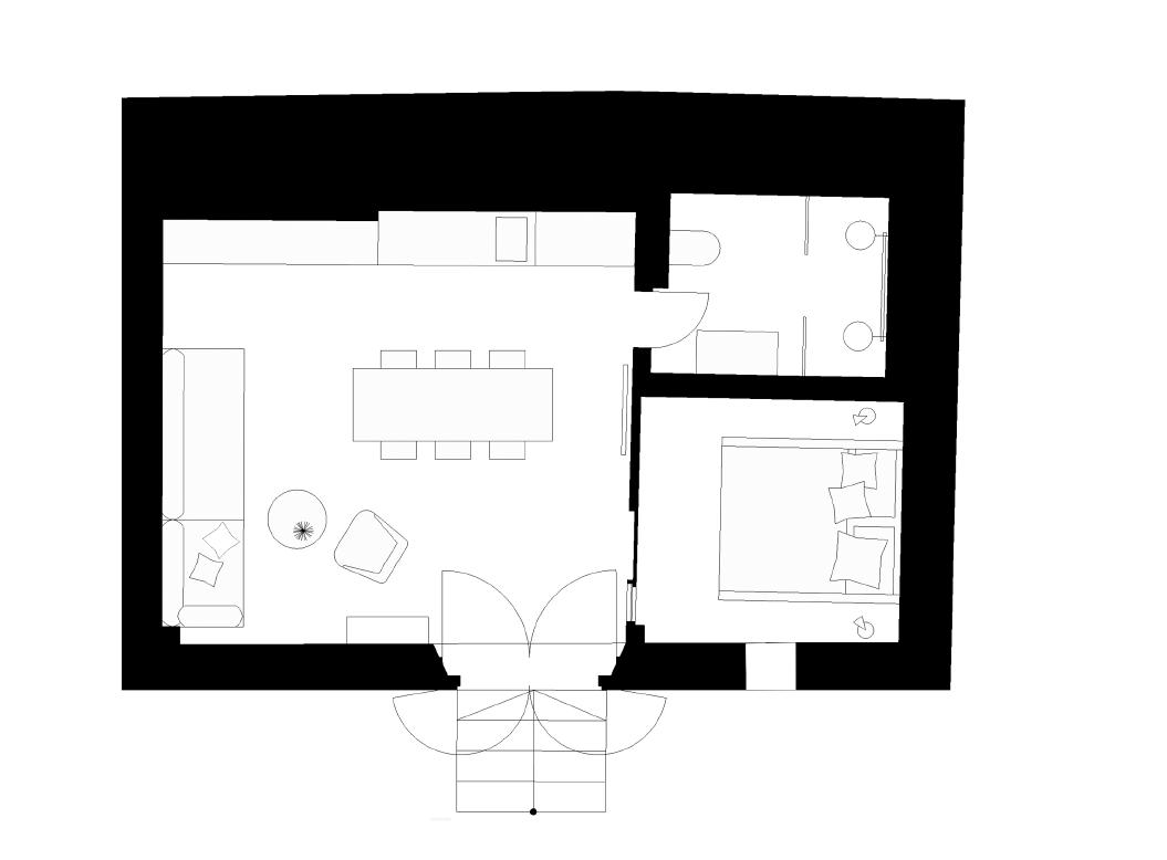
Apartmán AP4 se nachází v 1. patře a má celkovou obytnou plochu 18,6 m2. Apartmán je elegantně zařízený, skládá se z prostorného obývacího pokoje s kuchyňským koutem, ložnicové části a moderně vybavené koupelny. Prostor získává zvláštní autenticitu díky původním kamenným zdím, které vytvářejí jedinečnou atmosféru středomořského stylu.
Všechny apartmány v budově jsou plně vybavené a připravené k užívání po celý rok, ať už pro osobní účely nebo turistický pronájem.
K dispozici je také společná, pečlivě upravená zahrada, která zahrnuje plně vybavenou venkovní kuchyň, vířivku, finskou saunu s výhledem na moře, venkovní sprchu, pergolu s jídelnou, relaxační lounge zónu a prostor pro cvičení.
Apartmány jsou právně oddělené a lze je koupit jednotlivě nebo společně jako mimořádně atraktivní investiční příležitost. Objekt je již pronajímán s vynikajícími výsledky a dosahuje vysoké obsazenosti během letní sezóny.
Veřejné parkoviště se nachází v bezprostřední blízkosti objektu.
Apartmány k prodeji:
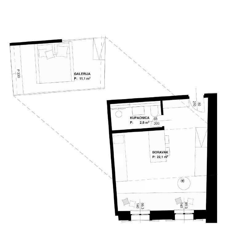
AP1: 34,1 m2, Cena: 255 750 €.
AP2: 37,8 m2, Cena: 245 700 €. - REZERVOVÁNO
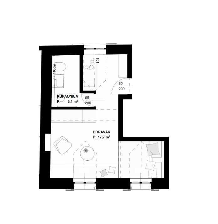
AP4: 18,6 m2, Cena: 148 800 €.
AP6: 20,8 m2, Cena: 166 400 €. - REZERVOVÁNO
AP7: 20,3 m2, Cena: 162 400 €.
AP8: 20,1 m2, Cena: 168 800 €.
AP9: 24,9 m2, Cena: 252 000 €.